Proposed Two Storey Industrial Building

Project Overview

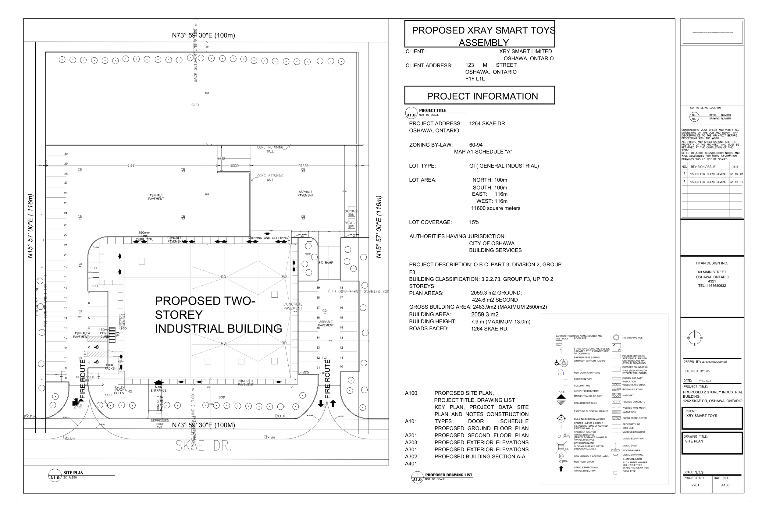
Project Title & Location: Proposed Two-Storey Industrial Building, Oshawa, Ontario, Canada

Building Type: Industrial Building Assembly Occupancy (Group F3)

Building Size: Approximately 2059.3 m² ground floor and 424.6 m² second floor
(Total gross building area: 2483.9 m²)

Site Area: Approximately 11,600 m² industrial property

Project Status: Academic design project (permit drawing set)

Software Used: AutoCAD

Design & Role

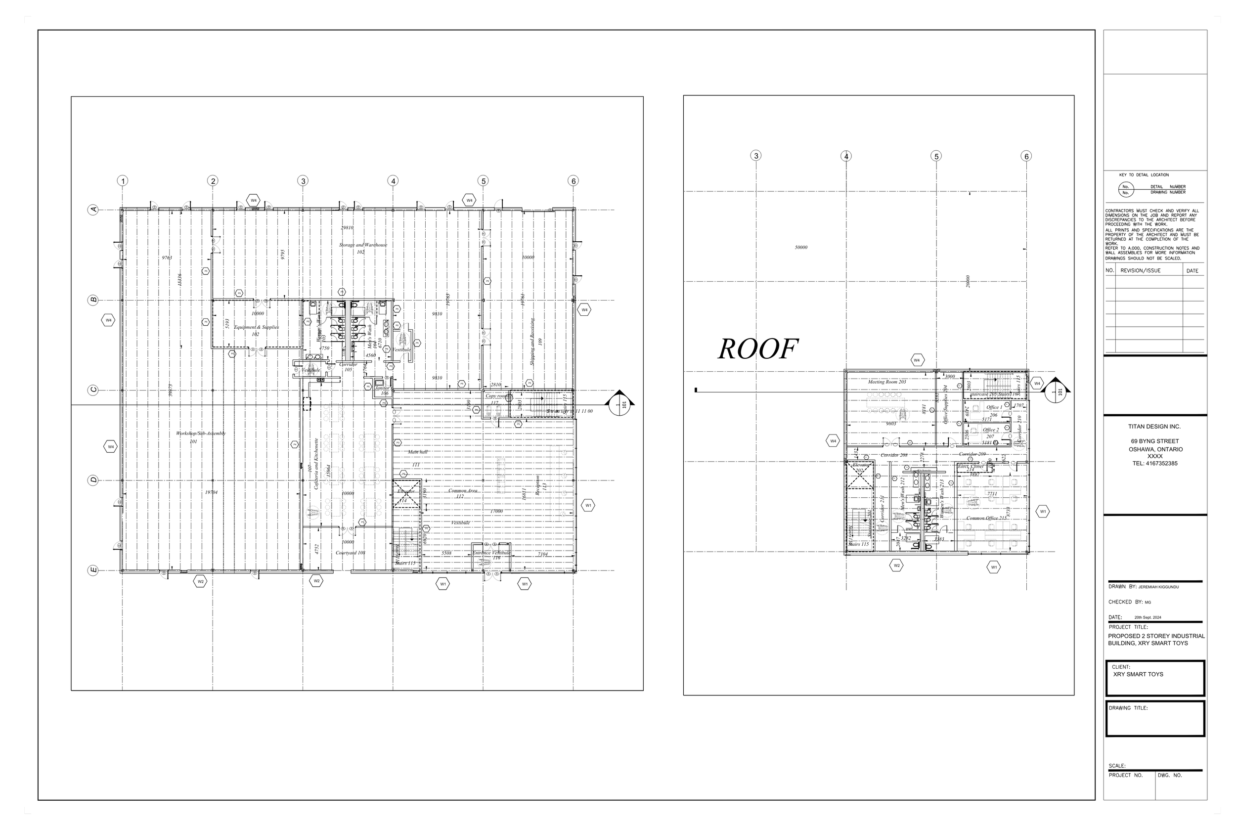
This modern two-storey industrial building in Oshawa is designed for efficiency, comfort, and flexibility. The ground floor is dedicated to assembly and production, while upstairs features bright, functional offices and support spaces. The layout makes it easy for people and materials to move around, and green spaces add a welcoming touch.

Wide-open assembly and production areas on the ground floor keep work flowing. Upstairs, offices and support rooms are comfortable and encourage teamwork. The entire layout is straightforward, making it easy to get anywhere in the building.

Outside, you’ll find plenty of parking, dedicated spots for loading and service, and landscaping that makes the site feel more inviting. All plans follow Ontario Building Code standards, so the building is safe, functional, and built to last.

My Role: I managed the design from start to finish, handling everything from the first sketches to the final construction documents. My focus was on creating a building that works well, feels safe, and is enjoyable to use every day.