Proposed Construction of Starbucks Café

Project Overview

Project Title & Location: Proposed Starbucks Café, Oshawa.

Building Type: Commercial Retail / Food & Beverage

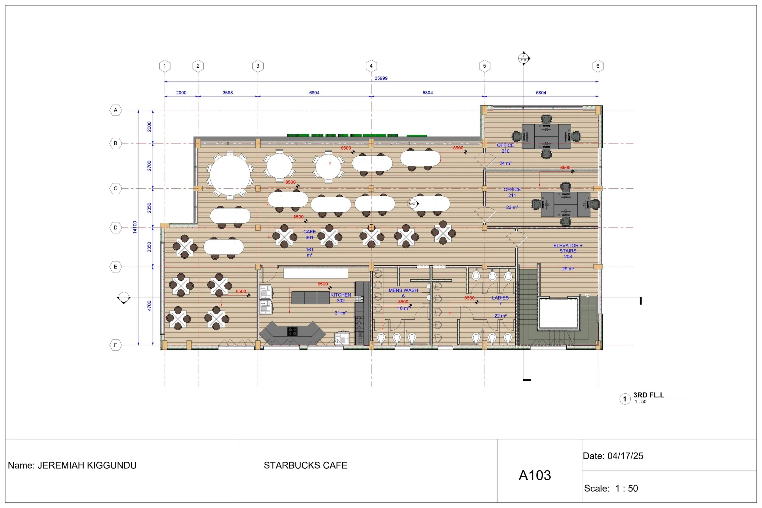
Building Size: Approximately 498 m² total gross floor area

Project Status: Preliminary Design Development (Academic Project)

Software Used: Autodesk Revit

Design, Construction & Role

Step inside this multi-storey Starbucks café in Oshawa and you’re greeted by sunlight streaming through floor-to-ceiling windows. The design is all about comfort and connection open spaces on the ground level invite lively conversation, while upstairs offers quiet corners and even a rooftop area to enjoy your coffee with a view.

Outside, a mix of warm wood and sleek glass gives the building a friendly, modern look that stands out on the street. Inside, every detail is planned for a great café experience, from the welcoming counter to the cozy seating nooks.

My Role: I brought this café to life from the first sketches to detailed 3D design, using Autodesk Revit throughout the process. My focus was on creating a space that’s vibrant, functional, and memorable—a café where people love spending time, whether for work, conversation, or a quiet break.