Proposed Renovation and Addition

Project Overview

Project Title & Location: Proposed Renovation and Addition of Two Storey Office Building, 101 Horizon Street, Oshawa, Ontario, Canada

Building Type: Commercial Office Building

Building Size: Maximum 1000 m² gross floor area with approximately 500 m² two storey addition to the existing building

Site Area: Approximately 11,600 m² industrial property

Project Status: Preliminary Design Development (Academic Project)

Software Used: AutoCAD

Design, Construction & Role

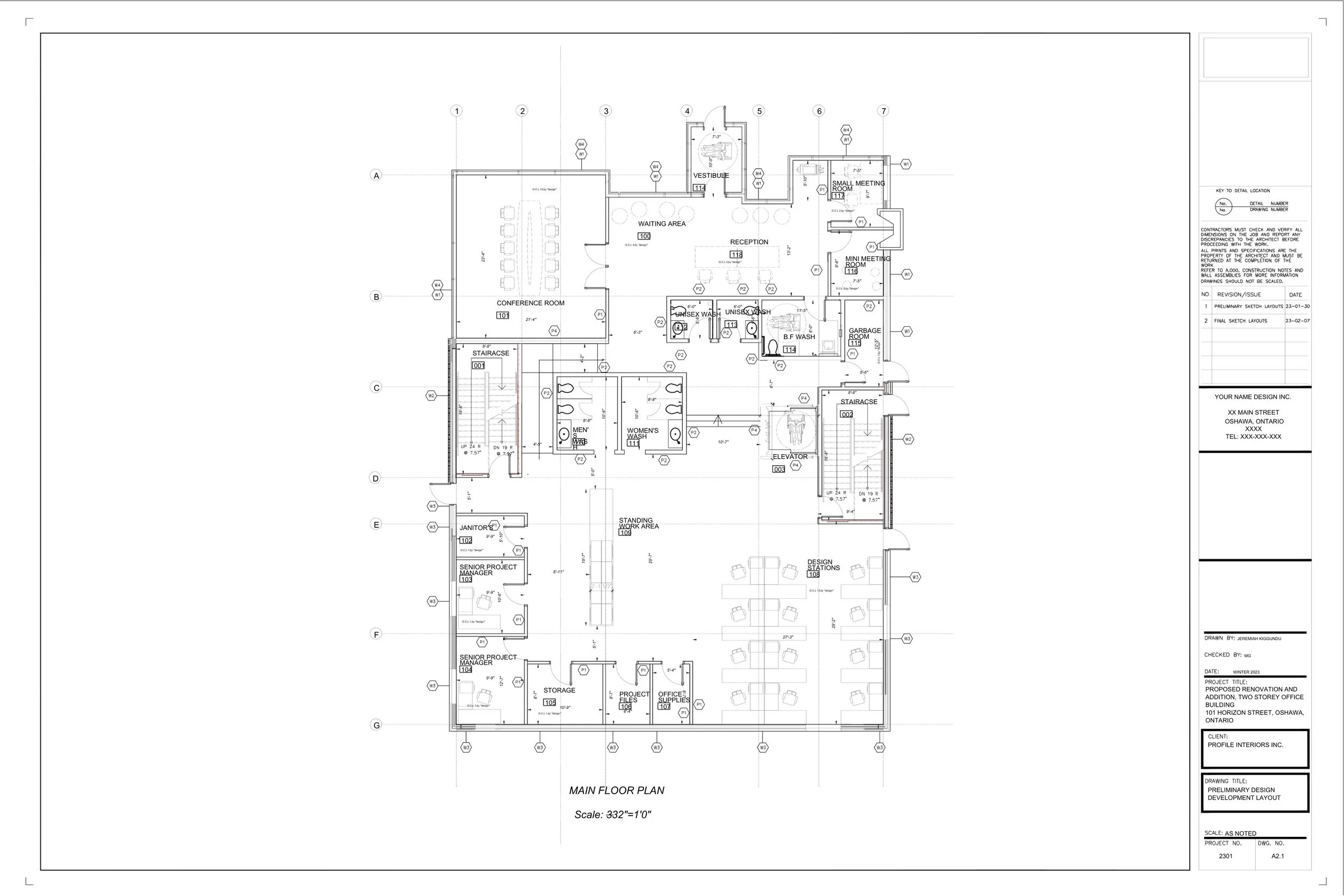
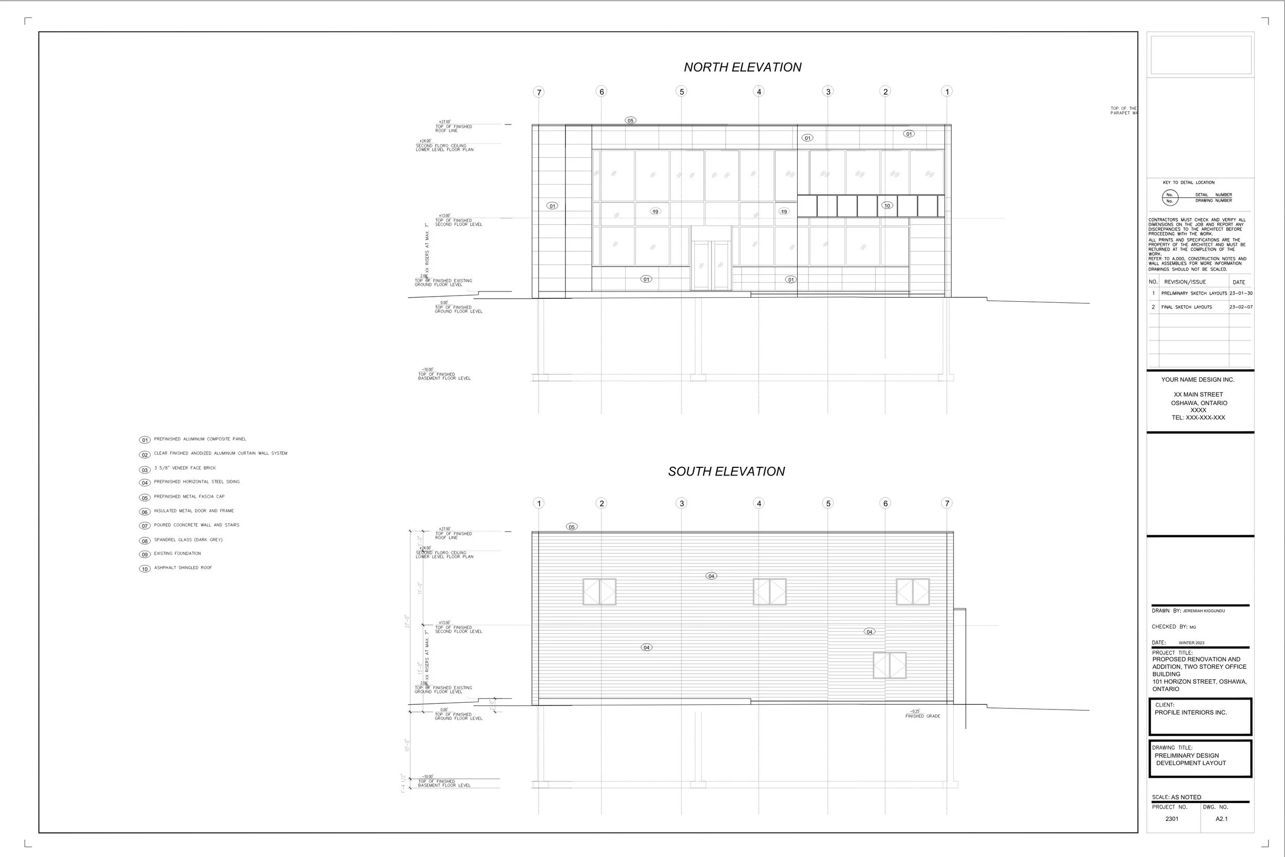
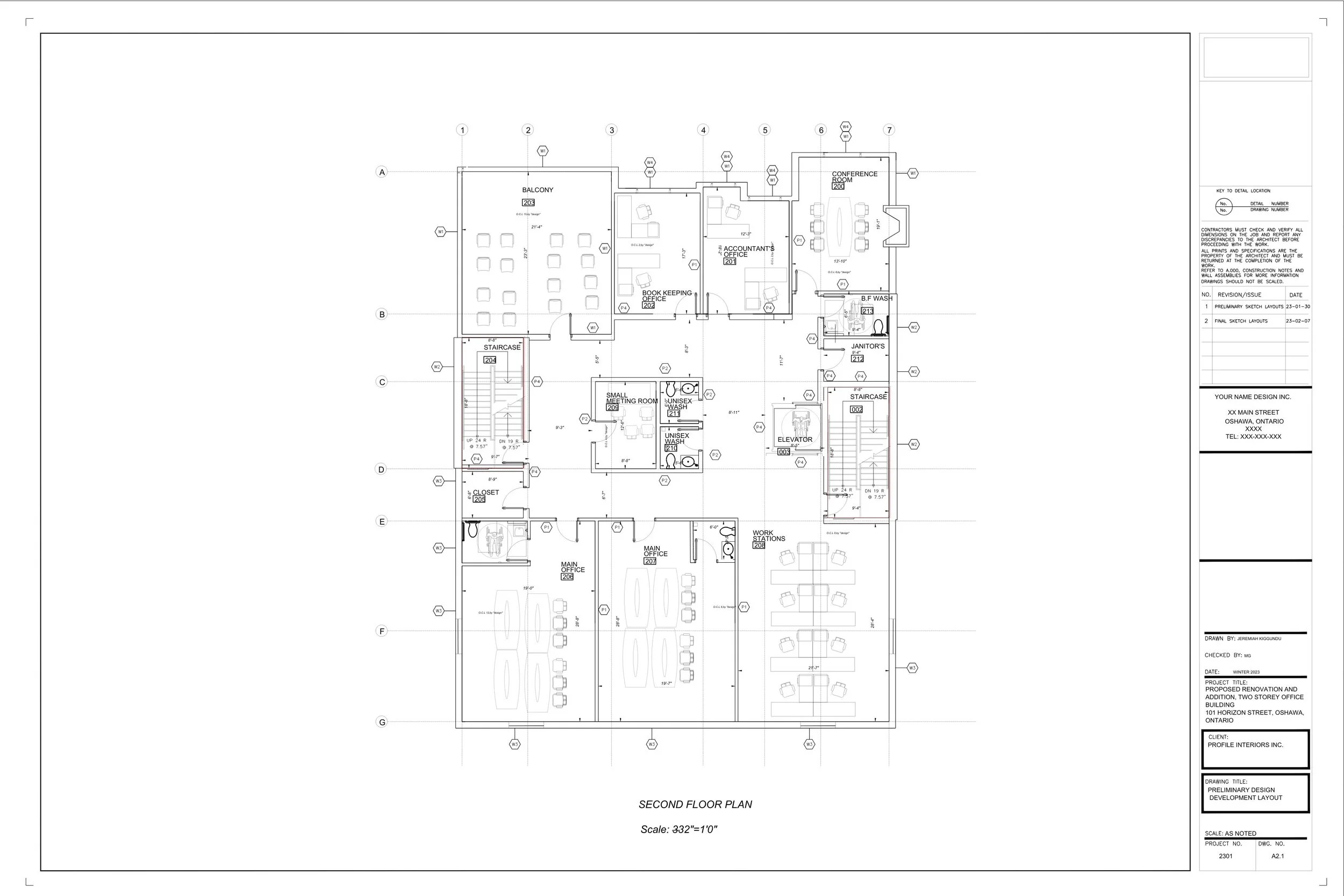
This project transforms the existing two-storey office building at 101 Horizon Street, Oshawa through a complete renovation and a thoughtfully designed addition. The goal is to breathe new life into the building, making it brighter, more modern, and enjoyable to work in. Expansive glass curtain walls flood the interiors with natural light and connect the inside to the outdoors. On the exterior, a mix of brick, aluminum panels, and metal siding gives the building a fresh, contemporary character that stands out in the community.

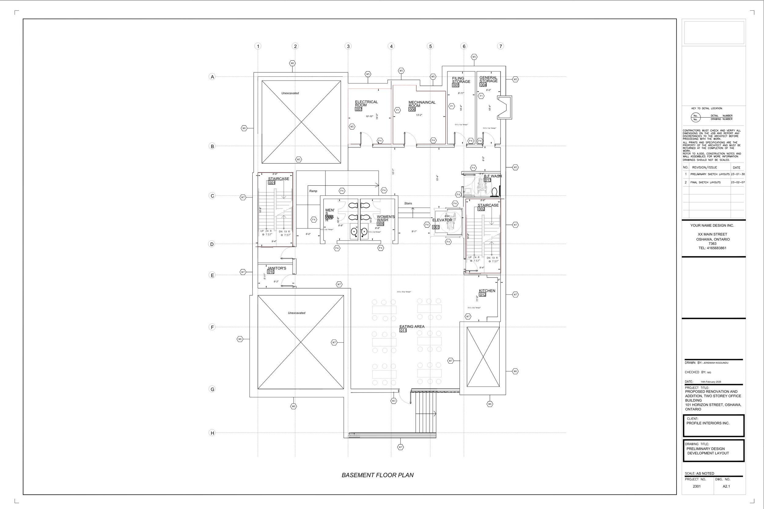
Inside, the layout is designed so everyone can work and move around easily. The basement has everything needed to keep the office running smoothly storage, mechanical spaces, a kitchen, and a lounge. With both stairs and an elevator, it’s easy for anyone to get anywhere in the building.

Strong concrete foundations and steel framing hold up both the old office and the new addition. Safety comes first, so fire-rated walls and building codes are followed to make sure everything is safe, durable, and built to last.

I managed every aspect of the architectural design for this project, from the first concept sketches to detailed construction drawings in AutoCAD. My work covered everything: planning how spaces flow, shaping the look of the building, choosing materials, and making sure the vision stayed clear from start to finish. Every detail was carefully considered to give the building a fresh identity and create a workspace that truly works for people.